De Buitenkamer
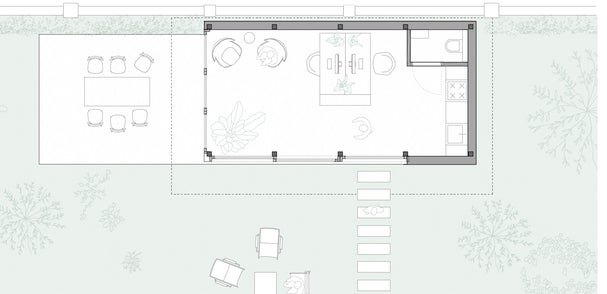
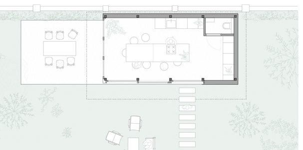
De Buitenkamer is een multifunctioneel en demontabel tuinhuis van 28 m² dat fungeert als verlengstuk van de woning. Deze ruimte is ontworpen voor flexibel gebruik: als kantoor, mantelzorgwoning, logeerverblijf of buitenkeuken. Daarmee draagt De Buitenkamer bij aan een levensloopbestendige woonomgeving en een optimale benutting van de tuin.

Het tuinhuis is opgebouwd in houtskeletbouw en duurzaam geïsoleerd met milieuvriendelijke materialen. De gevel is bekleed met zwarthout (Shou Sugi Ban), wat niet alleen zorgt voor een tijdloze uitstraling, maar ook helpt het volume te laten opgaan in de groene omgeving. Grote schuifpuien vervagen de grens tussen binnen en buiten, terwijl een royale overstek direct zonlicht blokkeert oververhitting voorkomt.




De architectuur is doordacht tot in de details: het houten dak lijkt te zweven en de slanke dakrand is subtiel verjongd. Hierdoor oogt het dak licht en elegant, terwijl het toch voldoende ruimte biedt voor een groendak en onzichtbare integratie van zonnepanelen. Zo wordt De Buitenkamer grotendeels zelfvoorzienend.
Met een maximale hoogte van 3 meter past De Buitenkamer binnen de regelgeving voor vergunningsvrij bouwen. Dankzij het gebruik van hoogwaardige, circulaire materialen is de Buitenkamer niet alleen duurzaam, maar ook eenvoudig te demonteren en verplaatsen en klaar voor een tweede leven op een andere plek.
Op zoek naar een duurzame architect?
Ik begeleid je graag van eerste schets tot oplevering en sta je project bij in elke ontwerpfase. Neem contact op voor een kennismaking en ontdek hoe we jouw dromen kunnen vertalen naar een duurzaam en praktisch ontwerp.
Plan een gesprek
